Продається квартира Артема, Вінниця, Вінницька, Ближнє замостя (№ 213-312-264)
Ціна: 55 000 $
Артема, Вінниця, Вінницька, Ближнє замостя
Характеристики
| Ціна: | 55 000 $ |
|---|---|
| № об'єкта: | 213-312-264 |
| Кімнат: | 2 |
| Поверх: | 2 / 5 |
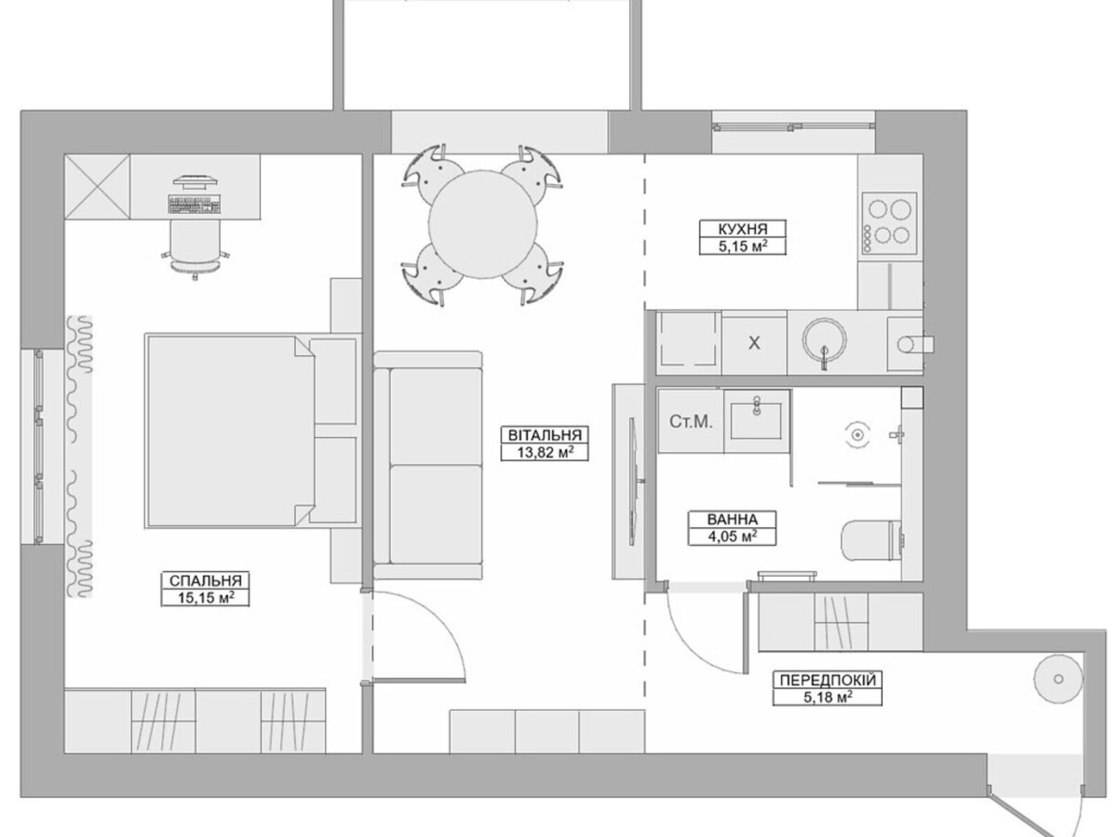
| Площа: | 42 / 26 / 5 м2 |
| Санвузол: | 1 |
| Балкон: | балкон |
| можливо під є-оселю: | - |
| тип стен: | кирпич |
| АГВ: | - |
Опис
Продаж ВІД ВЛАСНИКА (посередників прошу не турбувати)
Квартира під ремонт. Є можливість зробити одне з двох планування по пропозиції від дизайнера. Район СУПЕР! Поруч центральний ринок, школи, дитячі садочки, педуніверситет, розвинене транспортне сполучення. Ближнє замостя, Вінниця, по Артема 18. На 2 поверсі. Площа загальна 42.5 кв. м. Житлова площа 26.9 кв.м. Площа кухні становить 5.5 кв.м. Наявний балкон. У квартирі централізоване опалення. Колонка для підігріву води.
Ціна становить 52000 $. Без посередників.










