Здається об'єкт Вінницька, Вінниця, Ближнє замостя, Стрілецька (№ 1-584-252)
Ціна: 52 800 грн. + комунальні
Характеристики
| Ціна: | 52 800 грн. + комунальні |
|---|---|
| № об'єкта: | 1-584-252 |
| Тип: | торгівельні площі, об'єкт сфери послуг, інше |
| Поверх: | 1 / 9 |
| Площа: | 264 м2 |
| Додатково: | окремий вхід |
Адреса: Вінницька, Вінниця, Ближнє замостя, Стрілецька
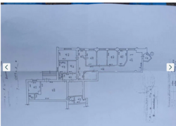
Вбудовано-прибудоване приміщення 264 м. кв. Може здаватися як два окремих приміщення 73 м.кв. і 191 м.кв. Всі комунікації, в т.ч. електроенергія 30 кВт 380 В. Індивідуальне опалення. Фасад на вул. Стрілецьку. Поруч в сусідньому приміщенні знаходяться Кав'ярня, Продуктовий міні-маркет, Продаж розливного пива, Пекарня 'Злаки'.. Може бути під навчальний заклад, медичний заклад, офіс та інше.. Всі питання по телефону.




































